..................MFYlar aholi punktlarining bosh rejalari..................
Oʻzbekiston Respublikasi Prezidentining 2025-yil 7-fevraldagi “Qashqadaryo viloyatini ijtimoiy-iqtisodiy rivojlantirishni jadallashtirish buyicha qushimcha chora-tadbirlari to‘g‘risidagi PQ-44-sonli qaroriga asosan Qashqadaryo viloyatining Shahrisabz tumani Ravot, Oqdaryo, Xo`jaxo`roson va Loliston MFYlari aholi punkitlarining bosh reja va batafsil rejalashtirish loyihalari ishlab chiqildi. O‘zbekiston Respublikasi Shaharsozlik kodeksining 38-moddasiga asosan “Aholi punktlari bosh rejalarining jamoatchilik muhokamasi” talablariga asosan ishlab chiqilgan bosh reja loyihalari yuridik va jismoniy shaxslar, jamiyat va davlat manfaatlariga muvofiqligi yuzasidan keng jamoatchilik tomonidan muhokama qilish uchun havola qilinmoqda.








Oʻzbekiston Respublikasi Prezidentining 2025-yil 7-fevraldagi “Qashqadaryo viloyatini ijtimoiy-iqtisodiy rivojlantirishni jadallashtirish buyicha qushimcha chora-tadbirlari to‘g‘risidagi PQ-44-sonli qaroriga asosan Qashqadaryo viloyatining Shahrisabz tumani Xontepa va Yangiqishloq MFYlari aholi punkitlarining bosh reja va batafsil rejalashtirish loyihalari ishlab chiqildi. O‘zbekiston Respublikasi Shaharsozlik kodeksining 38-moddasiga asosan “Aholi punktlari bosh rejalarining jamoatchilik muhokamasi” talablariga asosan ishlab chiqilgan bosh reja loyihalari yuridik va jismoniy shaxslar, jamiyat va davlat manfaatlariga muvofiqligi yuzasidan keng jamoatchilik tomonidan muhokama qilish uchun havola qilinmoqda.




Oʻzbekiston Respublikasi Prezidentining 2025-yil 7-fevraldagi “Qashqadaryo viloyatini ijtimoiy-iqtisodiy rivojlantirishni jadallashtirish buyicha qushimcha chora-tadbirlari to‘g‘risidagi PQ-44-sonli qaroriga asosan Qashqadaryo viloyatining Yakkabog` tumani Mevazor, Alako`ylak va Qushchinor MFYlari aholi punkitlarining bosh reja va batafsil rejalashtirish loyihalari ishlab chiqildi.






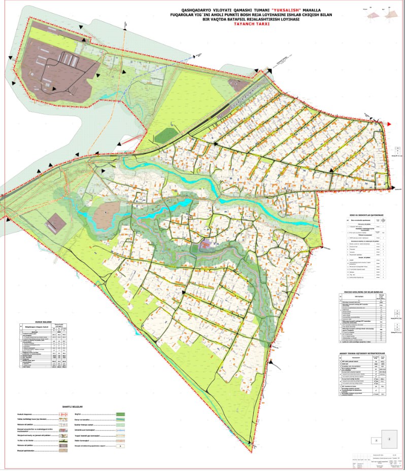
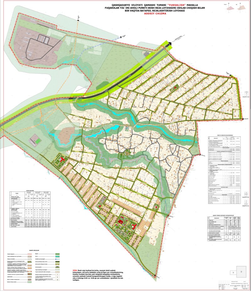
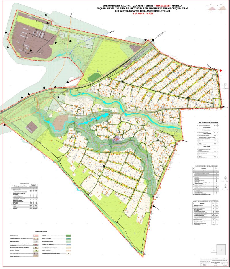
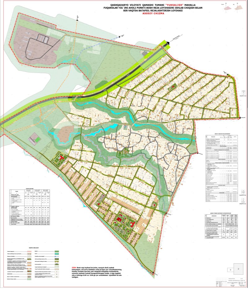
Oʻzbekiston Respublikasi Prezidentining 2025-yil 7-fevraldagi “Qashqadaryo viloyatini ijtimoiy-iqtisodiy rivojlantirishni jadallashtirish buyicha qushimcha chora-tadbirlari to‘g‘risidagi PQ-44-sonli qaroriga asosan Qashqadaryo viloyatining Qamashi tumani Yuksalish, Oynako`l va Istiqbol MFYlari aholi punkitlarining bosh reja va batafsil rejalashtirish loyihalari ishlab chiqildi.







Oʻzbekiston Respublikasi Prezidentining 2025-yil 7-fevraldagi “Qashqadaryo viloyatini ijtimoiy-iqtisodiy rivojlantirishni jadallashtirish buyicha qushimcha chora-tadbirlari to‘g‘risidagi PQ-44-sonli qaroriga asosan Qashqadaryo viloyatining Qamashi tumani Yuksalish, Oynako`l va Istiqbol MFYlari aholi punkitlarining bosh reja va batafsil rejalashtirish loyihalari ishlab chiqildi.





Oʻzbekiston Respublikasi Prezidentining 2025-yil 7-fevraldagi “Qashqadaryo viloyatini ijtimoiy-iqtisodiy rivojlantirishni jadallashtirish buyicha qushimcha chora-tadbirlari to‘g‘risidagi PQ-44-sonli qaroriga asosan Qashqadaryo viloyatining Kitob tumani Samarqand, Qaynar va Sharq yulduzi MFYlari aholi punkitlarining bosh reja va batafsil rejalashtirish loyihalari ishlab chiqildi. 





Oʻzbekiston Respublikasi Prezidentining 2025-yil 7-fevraldagi “Qashqadaryo viloyatini ijtimoiy-iqtisodiy rivojlantirishni jadallashtirish buyicha qushimcha chora-tadbirlari to‘g‘risidagi PQ-44-sonli qaroriga asosan Qashqadaryo viloyatining Kitob tumani Istiqbol, Yangizamon, Charmgar, Bog`bon va Paxtaobod MFYlari aholi punkitlarining bosh reja va batafsil rejalashtirish loyihalari ishlab chiqildi. 









